Terraced House in Blackpool

56 Adelaide Street, Blackpool FY1 4LA
  • Lot No: 185
  • Property Type: Terraced House
  • Contract Type: Unconditional with Variable Fee

Guide Price* £138,000+ plus fees

Property Description

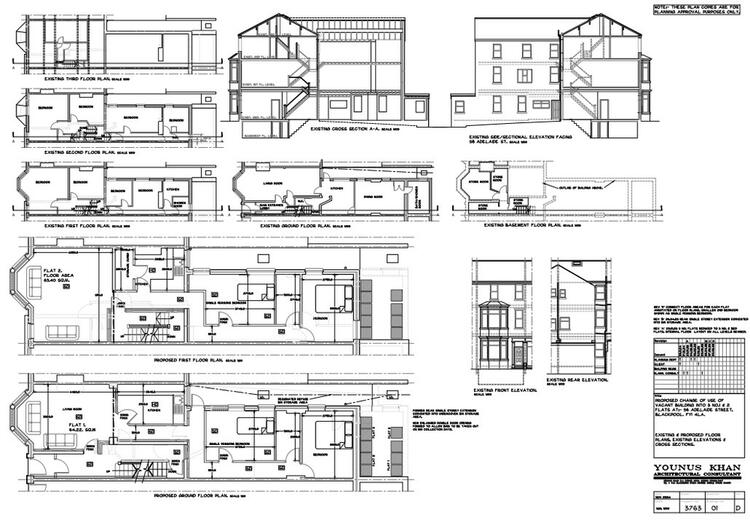
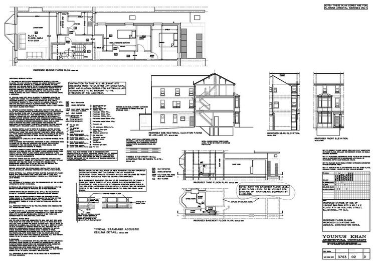
A vacant 8-bedroom mid-terrace property arranged over six floors conveniently located a short distance from the Winter Gardens and Blackpool Tower. The property was formerly used as a hotel/B&B and now benefits from planning consent (24/0676) for external alterations including demolition of rear extension and installation of new windows and use of premises as 3 self-contained 2-bedroom permanent flats. Ground Floor: Entrance Hall, two rooms, former kitchen, bathroom with shower, bath and WC. First Floor: Two rooms, bathroom with WC and a kitchen. Second Floor: Two rooms. Third Floor: Two rooms, WC. Fourth Floor: Two rooms. Fifth Floor: Converted loft which comprises of two rooms and a small storage area. The accommodation is partly double glazed and would benefit from full refurbishment.

Draft Sales Details

These sales details are awaiting vendor approval.


Tenure

Freehold


Auction Details: The sale of this property will take place on the stated date by way of Auction Event and is being sold as Unconditional with Variable Fee (England and Wales). Binding contracts of sale will be exchanged at the point of sale. All sales are subject to SDL Property Auctions’ Buyers Terms. Properties located in Scotland will be subject to applicable Scottish law. Auction Deposit and Fees: The following deposits and non- refundable auctioneer’s fees apply:
  • 5% deposit (subject to a minimum of £5,000)
  • Buyer’s Fee of 4.8% of the purchase price for properties sold for up to £250,000, or 3.6% of the purchase price for properties sold for over £250,000 (in all cases, subject to a minimum of £6,000 inc. VAT). For worked examples please refer to the Auction Conduct Guide.
The Buyer’s Fee does not contribute to the purchase price, however it will be taken into account when calculating the Stamp Duty Land Tax for the property (known as Land and Buildings Transaction Tax for properties located in Scotland), because it forms part of the chargeable consideration for the property. There may be additional fees listed in the Special Conditions of Sale, which will be available to view within the Legal Pack. You must read the Legal Pack carefully before bidding. Additional Information: For full details about all auction methods and sale types please refer to the Auction Conduct Guide which can be viewed on the SDL Property Auctions’ home page. This guide includes details on the auction registration process, your payment obligations and how to view the Legal Pack (and any applicable Home Report for residential Scottish properties). Guide Price & Reserve Price Each property sold is subject to a Reserve Price. The Reserve Price will be within + or – 10% of the Guide Price. The Guide Price is issued solely as a guide so that a buyer can consider whether or not to pursue their interest. A full definition can be found within the Buyers Terms.